Architect

BDV

Year:
10/2021
Location:
Voderady, SK
Authors:
Oliver Hacaj

Novú obytnú zóny na rozhraní obce a krajiny, tvorí šestica bytových domov, ktorá prirodzene nadväzuje na existujúcu výstavbu.

Jednotlivé budovy sú natočené tak, aby medzi nimi vznikali atraktívne priestory pre zeleň, šport a oddych. Vzniká tak parčík, akýsi filter medzi viac podlažnou zástavbou na okraji obce a pripravovanou výstavbou rodinných domov

Natočenia zároveň rešpektujú juhovýchodnú, prípadne juhozápadnú orientáciu jednotlivých bytov.

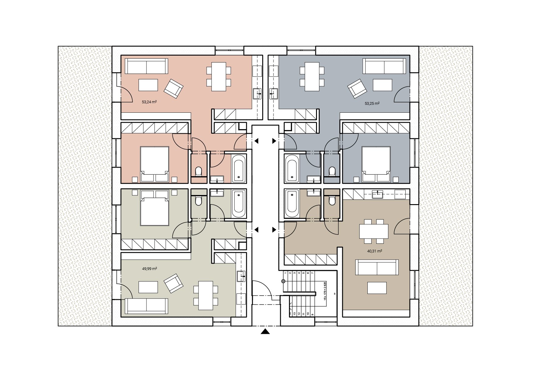
Kombináciu dvojizbových a jednoizbových bytov na troch nadzemných podlažiach, dopĺňajú veľkorysé trojizbové, prípadne štvorizbové byty na štvrtom, ustúpenom podlaží.

Tie disponujú rozľahlými terasami s výhľadmi do okolitej krajiny.