1/23
Komunitná Klubovňa
- Year:
- 05/2022
- Location:
- Trnava, SK
- Authors:
- Oliver Hacaj, Marek Malček
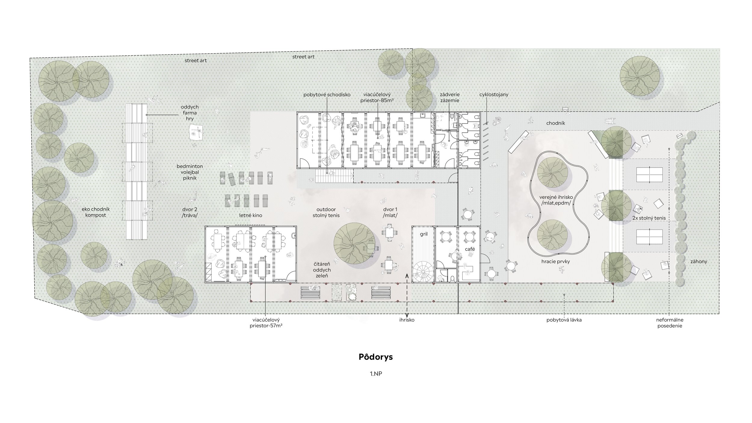
V návrhu novej komunitnej klubovne pracujeme vo veľkej miere s vizuálnym prepojením verejného a poloverejného priestoru, interiéru a exteriéru. Pavilónový koncept ponúka rôzne priehľady a nadhľady do jednotlivých viacúčelových priestorov, ich variabilitu, prípadne etapizáciu.
Medzi jednotlivými modulmi vznikajú útulné, neformálne zákutia-terasy s posedením a záhradkami. Komunitné dvory ponúkajú naopak dostatok priestoru na oddych, šport, letné kino, piknik, prípadne grilovanie.
Atraktorom sa stáva pobytová lávka, ktorá ponúka výhľady z novej perspektívy. Tento zjednocujúci prvok prepája nové detské ihrisko a komunitnú klubovňu – zároveň slúži ako malá tribúna.